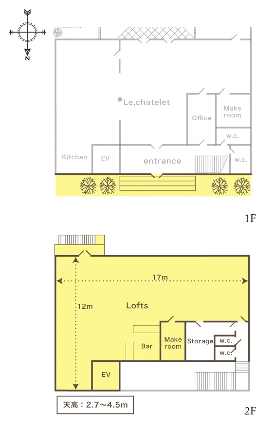
Lofts ロフツ BAYSIDEの2Fにあるスタジオ、Lofts。斜めの天井とむき出しの鉄骨、レンガ壁の無骨な空間ながら南向きの窓から暖かい日差しが差し込む。 MAIN SPACE MAKE ROOM TIME LAPSE https://studio-vence.com/wp-content/uploads/lofts_TIMELAPSE12-14.mp4 2月 February12:00-14:00 360°(Lofts) Price Still ¥ 25,000/h Movie ¥ 35,000/h 利用最低時間 4時間〜 Map Downloads BAYSIDEの利用規定、地図、レンタル機材の各種ご案内がダウンロードできます。 □スタジオの利用規定(2023年11月1日更新) ※ご一読ください※・vence利用規定 □決定確認書・BAY SIDE(Le,chatelet Lotfs meria terrasse) □レンタル機材申込書・レンタル機材申込書 □STUDIO PROPS LIST・BAY SIDE Props List □スタジオの地図 パーキングについて・BAYSIDE | 地図 | 駐車場(スタジオ駐車スペースのご案内です) □各スタジオの電気容量、面積、サイズなど・BAY SIDE & BAY SIDE annex・C60コンセントボックスについて BAYSIDE 〒136-0082 東京都江東区新木場3-4-11 venceTEL:03-5534-6500 (スタジオ直通)(ご予約のお問い合わせは、03-5621-7577まで) [電車でお越しの方] JR京葉線、東京メトロ有楽町線「新木場駅」下車 バス乗り場2番より「木11甲(新木場循環 / 東陽町駅行き / 東陽7丁目行き)」乗車〜「新木場南」下車 徒歩3分(鴨川商店の角を左に入り、道なりに進むと看板が見えてきます) [車でお越しの方] 首都高湾岸線 新木場出口より若洲方面へ5分。 または、明治通りを南下、新木場駅を越えて約5分。 Maps Company OWL COMPANY,LTD Access 各スタジオへのアクセスはこちら SitemapPrivacy Policy Copyright © vence co.,ltd All rights reserved.