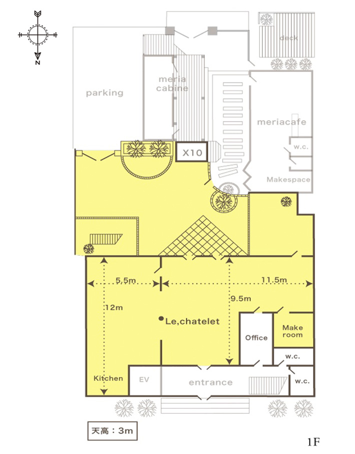
Le,châtelet シャトレ BYASIDEの1Fにあるスタジオ、Le,chatelet。南側にある前庭は終日気持ちよく光が降り注ぐ。 MAIN SPACE KITCHIEN MAKE ROOM 360°(Le, châtelet) Price Still ¥ 28,000/h Movie ¥ 39,000/h 利用最低時間 4時間〜 Map Downloads BAYSIDEの利用規定、地図、レンタル機材の各種ご案内がダウンロードできます。 □スタジオの利用規定(2023年11月1日更新) ※ご一読ください※・vence利用規定 □決定確認書・BAY SIDE(Le,chatelet Lotfs meria terrasse) □レンタル機材申込書・レンタル機材申込書 □STUDIO PROPS LIST・BAY SIDE Props List □スタジオの地図 パーキングについて・BAYSIDE | 地図 | 駐車場(スタジオ駐車スペースのご案内です) □各スタジオの電気容量、面積、サイズなど・BAY SIDE & BAY SIDE annex・C60コンセントボックスについて BAYSIDE 〒136-0082 東京都江東区新木場3-4-11 venceTEL:03-5534-6500 (スタジオ直通)(ご予約のお問い合わせは、03-5621-7577まで) [電車でお越しの方] JR京葉線、東京メトロ有楽町線「新木場駅」下車 バス乗り場2番より「木11甲(新木場循環 / 東陽町駅行き / 東陽7丁目行き)」乗車〜「新木場南」下車 徒歩3分(鴨川商店の角を左に入り、道なりに進むと看板が見えてきます) [車でお越しの方] 首都高湾岸線 新木場出口より若洲方面へ5分。 または、明治通りを南下、新木場駅を越えて約5分。 Maps Company OWL COMPANY,LTD Access 各スタジオへのアクセスはこちら SitemapPrivacy Policy Copyright © vence co.,ltd All rights reserved.